Municipiul Brașov are o strategie de dezvoltare intitulată Strategia de Dezvoltare Durabilă a Municipiului Braşov 2030, dar nu pentru că cineva ar fi avut o viziune pentru oraș, ci pentru că e obligatorie existența unui astfel de document.
Strategia aceasta, dacă veți avea răbdare să o răsfoiți, o să vedeți că e plină de lucruri contradictorii cu realitatea. Concret, Brașovului îi lipsește o viziune de dezvoltare și un plan de acțiune, iar urbanismul în care fiecare face ce vrea, așa cum este implementat de mai bine de 20 de ani, lasă loc oricăror „oportunități”.
O astfel de „oportunitate” o regăsim în trei zone istorice ale Brașovului și e reprezentată de dezvoltările imobiliare pe terenurile curte și grădini în diferite locuri din Șchei, Brașovul Vechi și Blumăna. Ce au în comun aceste trei zone marcate ca zone protejate prin PUG? Răspunsul este absența unor PUZ-uri dedicate de protecție, cu mențiunea că Brașovul Vechi este inclus în Regulamentul PUZ-ului Cetate, deși zonele au diferențe semnificative. Șcheiul și Blumăna nu au deloc PUZ-uri de protecție.
Această „scăpare” deschide „oportunități” precum PUD-ul de pe strada Constantin Lacea, nr. 10. Numai că aceste „oportunități” nu sunt excepții, ci practici uzuale. Nu stau să fac acum o hartă a inserțiilor urbanistice imobiliare pe terenuri încadrate ca și curți sau grădini în zonele Șchei, Brașovul Vechi și Blumăna, dar vreau să pun în discuție lipsa intenționată de viziune pentru dezvoltarea Brașovului, uitându-ne la acest caz..
Și aceasta în contextul în care în strategia menționată sunt câteva elemente care ar trebui să fie semnale de alarmă:
La pagina 205, la Imaginea oraşului, la puncte slabe, strategia menționează faptul că „construcţile de pe dealurile ce înconjoară oraşul vechi afectează atractivitatea întregului oraş şi vor avea o influenţă neplăcută asupra fluxului de turişti”.
La pagina 206, tot la Imaginea oraşului, puncte slabe, este menționat faptul că „greşelile planurilor anterioare de urbanism în cartierele cu blocuri şi case au dus la o aglomerare locativă cu spaţii reduse între clădiri”.
La pagina 205 este menționat faptul că „reglementările PUG sunt încă prea puţin axate pe obiective în planificarea urbană: reamenajarea centrului oraşului, reglementări privind modul de construire etc.”.
La pagina 257 se vorbește de identitate locală: „Brasov este un oras cu un Centru Istoric Vechi si un Centru Nou importante. Orasul Vechi este miezul istoric al orasului care contribuie semnificativ la identitatea brașovenilor”.
PUD Lacea 10
PUD-ul pentru strada Constantin Lacea nr. 10 vizează construirea unui „imobil colectiv și aparthotel”, cu un număr de 21 de apartamente în grădina din spatele unor case.
Din memoriu reies următoarele:
1. „Proprietatea reglementată prin PUD este alcătuită din 1 imobil – rezultat prin alipirea celor 3 imobile inițiale pentru care s-a emis Certificatul de Urbanism – și are o suprafață totală de 2.163 mp, aflat în proprietate privată. Pe teren există 2 anexe ce sunt propuse spre desființare.”
2. „S-a studiat amplasarea unei clădiri turistice tip apartamente de închiriat cu aproximativ 21 unităti, recepție, gym, sală întâlniri și spații adiacente, spații tehnice – regim de înălțime 2S+P+2E și parcare integral subterană. Clădirea va fi dotată cu min. 24 locuri de parcare; toate prevăzute la nivelul subteran.”
3. „Față de denumriea din Certificatul de Urbanism s-a menținut încadrarea ca spații de cazare turiști însă s-a optat pentru încadrarea în norme de clasificare a unității turistice ca „apartamente de închiriat”.”
Din aceste trei puncte reies câteva elemente importante:
Poate cel mai important este alipirea a trei terenuri. Acest aspect oferă posibilitatea investitorilor de a vea o clădire mai mare, în condițiile în care POT-ul pentru zona respectivă este de 40%. Acest aspect ar trebui să fie parte din discuția legată de vizizunea și de protecția centrului istoric al Brașovului. Și dacă Brașovul decide că vrea protecție istorică, atunci alipirile ar trebui interzise pentru a putea păstra țesutul urban istoric.
Apoi, vedem că regimul de înălțime este de 2S+P+2E+M. Aici este o nouă discuție. Conform PUG, zona în care se propune această intervenție imobiliară este L1b – locuințe individuale şi colective mici cu maxim P+2 niveluri situate în interiorul zonei protejate cu regim de construire continuu (înşiruit) sau discontinuu (cuplat, izolat); realizate pe parcelări tradiționale.
Așadar, avem o propunere de 6 niveluri într-o zonă care permite 3 niveluri.
Acum, este adevărat că zona L1b „admite mansardarea clădirilor (P+2+M), dar cu condiția ca aceasta să nu fie o falsă mansardare ci să se înscrie în volumul unui acoperiş cu pantă de 45 grade; iar suprafața nivelului mansardei va fi de maxim 60% din aria unui nivel curent; mansardarea se poate realiza si prin ridicarea perimetrale a zidurilor de închidere, sub acoperiș, până la H max. 1,20 m”.
Mansardarea este de multe ori folosită pentru a ascunde un etaj suplimentar, pe care, în mod normal nu ai avea cum să-l faci. Și cred că la acest aspect se referă sintagma „falsă mansardare”. Dar aici ține de autoritățile competente ca propunerile să se încadreze în cadrul legal.
Mai departe vă propun o privire asupra terenurile care fac obiectul acestui PUD. Acestea sunt:
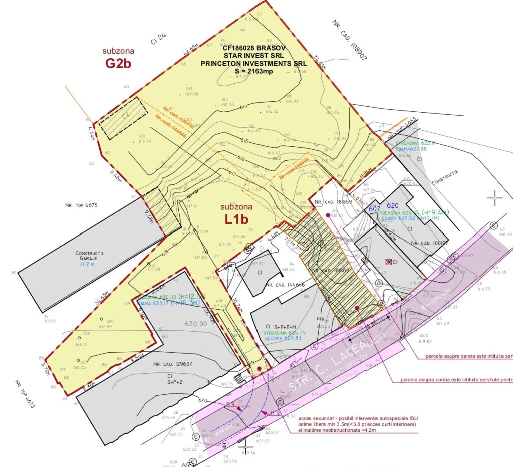
CF 186028, categorie folosință – arabil. Este cel rezultat prin alipirea a trei imobile și este terenul de 2.163 mp pe care se propune construirea. Este terenul marcat cu nuanța galbenă pe harta de mai jos.
CF 181860, categorie folosință – curte și arabil. Este un teren de 189 mp care oferă servitute de trecere pentru terenul mare. Așadar, va fi unul din cele două căi de acces la viitorul imobil construit. Este terenul marcat cu nuanța galbenă și hașurat cu linie dublă pe harta de mai jos
Cea de-a doua cale de acces este printr-o bretea cu lățime de 4.2 m (actualul acces spre garajele blocului de locuințe existent), acces din strada Constantin Lacea printre pensiunea existentă și blocul existent.

Aici este interesant de observat forma terenului obținut prin cele trei alipiri. Astfel, terenul care face obiectul reglementărilor acestui PUD are două brațe care ocupă un drum de acces și două curți, una a blocului existent și una a pensiunii, curți în care, la momentul publicării acestui articol, parcau locatarii blocului, respectiv clienții pensiunii.
Vă las și o imagine în care am încercat să suprapun planșa pe teren existent.

Un alt element pe care îl regăsim în memoriul pentru acest PUD ține de coeficientul POT (procentul de utilizare al terenului). În memoriu, la indicatori urbanistici maximali apare: „POT max 50% și CUT max 1.5 P+2, cu posibilitatea depășirii pentru mansarde în proporție de max 60% din nivelul curent”.
În timp ce PUG-ul spune că pentru zona L1b, POT maxim este de 40%, iar CUT este 1,2 pentru regim de P+2. Este adevărat că în PUG se menționează că POT-ul și CUT-ul se reglementează conform regulamentului aferent „PUZ – Zona istorică Brașovul Vechi” și „Zona de rezervație de arhitectură Cetate Brașov”.
Ori aici avem o anomalie rezultată din faptul că pentru Șchei, administrația locală nu a fost interesată în realizarea unui PUZ dedicat de protecție. Astfel, pentru Șchei se fac trimiteri de reglementări la zonele Cetate și Brașovul Vechi, deși țesuturile urbane sunt foarte diferite între ele.
Dar să mergem mai departe, pentru că în acest demers trebuie discutat și despre un monument istoric, anume de Casa Lucian Blaga (1895 – 1961), COD LMI BV-IV-m-B-11891, care este exact la aceeași adresă, strada Constantin Lacea, nr. 10. Așadar, nu doar cele două terenuri menționate anterior fac obiectul acestui PUD, ci și Casa Blaga și curtea aferentă.
Pentru că zona protejată Șchei nu are un PUZ de protecție dedicat și nici în PUG nu se stabilește zonă de protecție dedicată pentru monumentul în discuție, ar trebui să se aplice prevederile Legea nr. 422/2001 privind protejarea monumentelor istorice, care spune la art. 59 că „până la instituirea zonei de protecție a fiecărui monument istoric potrivit art. 9 se consideră zonă de protecție suprafața delimitată cu o rază de 100 m în localități urbane, 200 m în localități rurale și 500 m în afara localităților, măsurată de la limita exterioară, de jur-împrejurul monumentului istoric.”
Iar delimitarea zonei de protecție este o obligație a autorității locale, conform art. 9 din Legea nr. 422/2001.
E important de precizat că în acest caz ar trebui să se aplice această zonă de protecție delimitată cu o rază de 100 m.
La momentul publică acestui articol, pentru Casa Lucian Blaga există emis un Acord scris nr. 184/19.11.2024 pentru „reparații fațade și acoperiș”.
O primă observație este cea legată de data începerii lucrărilor. Conform acordului, aceasta este 20.11.2024, iar pe afișul de la fața locului este 29.05.2025. Termenul de finalizare este același pe ambele, 20.11.2026.

Beneficiarul lucrărilor de reparații la Casa Blaga este PRINCETON INVESTMENTS SRL. Societatea este proprietar pe terenul de 189 mp și proprietar cotă parte pe terenul de 2.163 mp, ambele făcând obiectul reglememtărilor prin PUD Lacea 10. Pe restul de cotă parte din terenul de 2.163 mp este proprietar societatea STAR INVEST SRL..
Conform memoriului, beneficiarul PUD-ului este societatea BEATUS INVESTMENT PARTNERS SRL.
Pe lângă cele trei societăți, mai sunt doi actori imobiliari, care, în 2024 au făcut demersurile în cadrul CTATU pentru avizarea temei de proiectare, pentru care au și primit aviz în ședința din 30.07.2024.

Biro Iulian Gabriel este persoana de la care societățile STAR INVEST SRL și PRINCETON INVESTMENTS SRL au cumpărat cele două terenuri, mai sus menționate. Iar arhitectul Mihai Roșca este proiectantul PUD-ului.
PUD Lacea 10 mai trece o dată prin CTATU, când în ședința din 16.12.2025 primește aviz. Primări Brașov precizează că „regimul de înalțime a fost redus față de forma inițială prezentată (în data de 30.07.2024)”.

De data aceasta, demersul a fost făcut de către societatea BEATUS INVESTMENT PARTNERS SRL, beneficiarul PUD-ului.
Primăria Brașov mai spune că „documentația de urbanism se află în procesul de informare și consultare a publicului”. Numai că și aici avem o întrebare. Cât durează această consultare și unde se pot transmite observațiile? Pentru că anunțul a fost publicat pe site-ul Primăriei Brașov în 9 februarie 2026, dar fără obișnuitele mențiuni legate de cum și unde se pot depune observațiile publicului. Iar acest proces de consultare este unul cât se poate de netransparent, niciodată nu știm observațiile depuse și niciodată nu știm dacă se ține cont de vreo observație.

Și acest lucru în condițiile în care în data de 11.03.2026 a fost emis un Certificat de Urbanism cu nr. 583 pentru obținere AC – construire imobil colectiv și aparthotel.

În 5 martie 2025, Biro Iulian solicită avizul Comisiei pentru Circulație „construire imobil colectiv și aparthotel” – Str. Constantin Lacea nr. 10 – faza PUD. Vedeți mai jos punctul 5 pe ordinea de zi a ședinței.

Iar Primăria Brașov a „omis” publicarea hotărârilor pentru ședința de la acea dată. De ce a făcut asta, nu știu să vă spun.
Scurtă prezentare a celor trei societăți: BEATUS INVESTMENT PARTNERS SRL, STAR INVEST SRL și PRINCETON INVESTMENTS SRL.
BEATUS INVESTMENT PARTNERS SRL, București
Înregistrată la data de 16.07.2024
Obiect principal de activitate: Activități de consultanță în afaceri și management
Deținută de Nicolescu Ionuț-Alin
Administrator: Andrei Cremona-Maria
Zero angajați.
STAR INVEST SRL, Brașov
Înregistrată la data de 17.01.2006 și reluare activitate din 11 Aprilie 2012
Obiect principal de activitate: Închirierea și subînchirierea bunurilor imobiliare proprii sau închiriate
Deținută de Pavel Marius-Florin
Administrator: Pavel Mihaela
Angajați: 1
Cifră de afaceri: 2.232.188 lei în 2024
PRINCETON INVESTMENTS SRL, Baia Mare
Înregistrată la data de 20.10.2016
Obiect principal de activitate: Activități de consultanță în afaceri și management
Deținută de Viman Vasile 50% și Viman Claudiu 50%
Administrator: Viman Vasile și Viman Claudiu
Angajați: 0
Cifră de afaceri: 0
În final, vă las un colaj video ca să vedeți situația în teren la momentul publicării acestui articol.


Leave a Reply